Погрузчики Автобусы Грузовые автомобили Легковые автомобили Землеройная техника Строительная техника Коммунальная техника Дорожно-строительная спецтехника Мотоциклы, скутеры, квадроциклы

Magaziner EK 20 штабелер узкопроходный в Москве — продажа и лизинг

Magaziner EK 20 штабелер узкопроходный

По вопросам покупки данной техники (Magaziner EK 20 штабелер узкопроходный), условиях кредита и лизинга, сервисного и гарантийного обслуживания просьба обращаться к дилерам завода или в официальные представительства. Поставка Magaziner EK 20 штабелер узкопроходный может осуществляться как напрямую с завода-изготовителя, так и с площадок в Москве и других регионах РФ.

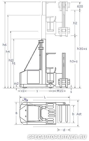
Технические характеристики Magaziner EK20

Q Грузоподъёмность, кг 2000
C Центр тяжести, мм 600
  Тип двигателя электрический
  Положение оператора стоячее или сидячее
  Материал шин полиуретан
  Количество ведущих колёс (на стороне двигателя), шт. 1
  Количество колёс на стороне погрузки, шт. 2
h8 Высота платформы оператора, мм 400
h3G + s Высота подъёма, мм см. таблицу
h2 Дополнительный подъём, мм 1500
h9 Высота захвата, мм h6 - 400
  Толщина вилы, мм 40
  Ширина вилы, мм 120
  Длина вилы, мм 800 — 1300
B3 Ширина по вилам, мм 240 — 795
s Минимальная высота вил, мм 80
L Общая длина, мм (при ширине держателя вил 850 мм) 3740 — 3840
L Общая длина, мм (при ширине держателя вил 580 мм) 3605 — 3705
M1S Длина поддерживающей стрелы (стандартная), мм 550 — 650
X Свес со стороны погрузки, мм 360
Х1 Свес со стороны двигателя, мм 270
B Общая ширина, мм 1200 — 1700
h1 Высота при сложенной мачте, мм см. таблицу
h6 Высота при поднятой кабине, мм см. таблицу
h4 Высота при поднятой мачте, мм см. таблицу
Wa Радиус поворота, мм 2445
Ast Ширина прохода, мм 1400 — 2000
  Скорость передвижения с грузом, км/ч 10,0 — 11,0
  Скорость передвижения без груза, км/ч 10,0 — 11,0
  Скорость подъёма вил с грузом, м/с 0,32 — 0,38 *
  Скорость подъёма вил без груза, м/с 0,42 *
  Скорость опускания вил с грузом, м/с 0,40
  Скорость опускания вил без груза, м/с 0,40
  Горизонтальный ход вил с грузом, м/с 0,20 ***
  Горизонтальный ход вил без груза, м/с 0,20 ***
  Масса, включая батарею, кг 7400 — 8800
  Нагрузка на ось со стороны двигателя, при полной загрузке, кг 2150; 2550
  Нагрузка на ось со стороны двигателя, без загрузки, кг 3000; 3400
  Нагрузка на ось со стороны погрузки, при полной загрузке, кг 7250; 8250
  Нагрузка на ось со стороны погрузки, без загрузки, кг 4400; 5400
  Количество шин на стороне двигателя, шт. 1
  Количесто шин на стороне погрузки, шт. 2
  Размер шин на стороне двигателя, мм 381 / 152
  Размер шин на стороне погрузки, мм 377 / 178
y Колёсная база, мм 2140
m2 Дорожный просвет, мм 40
  Рабочий тормоз электромагнитный
  Стояночный тормоз датчик присутствия (dead man's brake)
  Аккумуляторная батарея DIN 43536 A
  Напряжение аккумуляторной батареи, В 80
  Ёмкость аккумуляторной батареи, А·ч 775 **
  Масса аккумуляторной батареи, кг 1862
  Тяговый двигатель, кВт 7,0 или 5,0
  Подъёмный двигатель, кВт 26,0 или 18,0 *
  Электрический привод движением и погрузкой переменный или постоянный ток

Примечания:

  • * — Увеличенная скорость подъёма по дополнительному заказу.
  • ** — Также имеется возможность установить аккумуляторы другой ёмкости на заказ.
  • *** — Возможно увеличение до 0,45 м/с по заказу.

Отличия в характеристиках Magaziner EK 20 при использовании привода постоянного или переменного тока

  • Привод переменного тока:
    • Скорость передвижения 11 км/ч
    • Скорость подъёма вил с грузом 0,38 м/с
    • Тяговый двигатель 7,0 кВт
    • Подъёмный двигатель 26,0 кВт
  • Привод постоянного тока:
    • Скорость передвижения 10 км/ч
    • Скорость подъёма вил с грузом 0,32 м/с
    • Тяговый двигатель 5,0 кВт
    • Подъёмный двигатель 18,0 кВт

Размеры Magaziner EK 20

Magaziner EK 20 штабелер узкопроходный

Таблица 1: Размеры и высота подъема Magaziner EK 20 с двойной мачтой (дуплекс), вилами с шарнирным соединением, дополнительным подъемом 1500 мм

Полная высота подъёма с дополнительным подъёмом 1500 мм Высота подъёма кабины Высота платформы подъёмника Увеличенная высота подъёма кабины * Высота при сложенной мачте (дуплекс)
h3G + s h3 + s h12 h6 h1
мм мм мм мм мм
5000 3500 3820 5820 3170
5500 4000 4320 6320 3420
6000 4500 4820 6820 3670
6500 5000 5320 7320 3920
7000 5500 5820 7820 4170
7500 6000 6320 8320 4420
8000 6500 6820 8820 4670
8500 7000 7320 9320 4920
9000 7500 7820 9820 5170
9500 8000 8320 10320 5420
10000 8500 8820 10820 5670
10500 9000 9320 11320 5920
11000 9500 9820 11820 6170
11500 10000 10320 12320 6420
12000 10500 10820 12820 6670
12500 11000 11320 13320 6920
13000 11500 11820 13820 6170

* — Включая дополнительную высоту подъёма 2300 мм + 600 мм

Таблица 2: Ширина прохода в зависимости от размеров груза (для Magaziner EK 20)

Размеры груза Расстояние между погрузками Длина стрелы Ширина прохода *
глубина ширина
b d Ast M1S  
мм мм мм мм мм
1240 835 1700 460 3820
1200 800 1650 460 3800
1200 1000 1650 550 3890
1200 1200 1650 650 3980
1000 800 1450 460 3730
1000 1000 1450 550 3820
1000 1200 1450 650 3910
800 800 1400 460 3710
800 1000 1400 550 3800
800 1200 1400 650 3900
835 1240 1400 650 3900

* — Ширина прохода без загрузки и при ширине каретки вил 580 мм, с механическим управлением + 300 мм, с проводным управлением + 800 мм (рекомендуется).

Фотографии Magaziner EK 20 штабелер узкопроходный

Magaziner EK 20 штабелер узкопроходный Фото № 1

Дополнительная информация

Смотрите также

Magaziner EK 11 штабелер узкопроходный

Magaziner EK 11 штабелер узкопроходный

Magaziner EK 12 штабелер узкопроходный

Magaziner EK 12 штабелер узкопроходный

Magaziner EK 13 штабелер узкопроходный

Magaziner EK 13 штабелер узкопроходный

Magaziner EK 15 штабелер узкопроходный

Magaziner EK 15 штабелер узкопроходный

Magaziner EK 15 XL штабелер узкопроходный

Magaziner EK 15 XL штабелер узкопроходный

Magaziner EV 10 штабелер узкопроходный

Magaziner EV 10 штабелер узкопроходный

Magaziner EV 13 штабелер узкопроходный

Magaziner EV 13 штабелер узкопроходный

Mitsuber CDD10H-A штабелер

Mitsuber CDD10H-A штабелер

Mitsuber CDDS10H штабелер

Mitsuber CDDS10H штабелер

Mitsuber CQD12H штабелер-ричтрак

Mitsuber CQD12H штабелер-ричтрак

Категории

Copyright © 2004-2016 "СпецАвтоПартнёр" Россия, Москва

Информация не является публичной офертой. Все товарные знаки приведены в целях иллюстрации. Политика конфиденциальности